お客様専用フリーダイヤル
0120-916-245
受付時間:9:00〜18:00

コンセプト
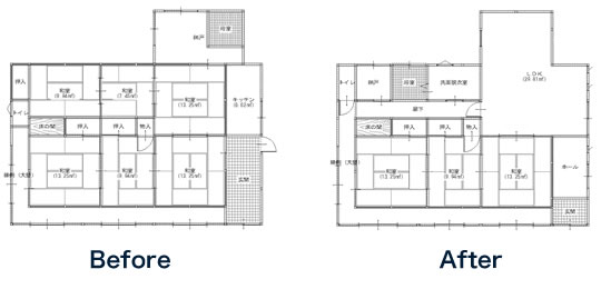
築30年以上の昔ながらの古民家住宅をリノベーション。和風の雰囲気を生かしながら味のある仕上がりになりました。無垢材や炭塗料など健康素材も採用。間取りを変更するため各所に頑丈な補強を施しています。先代が守ったお屋敷が生まれ変りました。

築30年以上の昔ながらの古民家住宅をリノベーション。和風の雰囲気を生かしながら味のある仕上がりになりました。無垢材や炭塗料など健康素材も採用。間取りを変更するため各所に頑丈な補強を施しています。先代が守ったお屋敷が生まれ変りました。

| 地域 | 茨城県笠間市 |
|---|---|
| 施工個所 | 全面 |
| 工期 | 2ヶ月 |
| 工事金額 | 700万円 |


before
光が入りづらく寒かった和室。その部屋に繋がるキッチンと薪風呂がかなり傷んでおりました。

After
和室だった茶の間と釜を使っていた水廻りをひとつのLDKになりました。間取りを変えるため柱を抜き梁を補強する作業は大変でした。既存の天井裏に隠れていた立派な丸太梁をあらわして天井を吹き抜けにすることで古民家の雰囲気を引き立たせて開放感のあるスペースになりました。お施主様に大変喜んでいただいたので大変だった補強作業も報われました。

INAXのシステムキッチン「イスト」の対面タイプを設置しました。対面側はスライド収納もついて収納も抜群。

天井裏の梁を表して吹き抜け天井に。梁の表面を削りだして「炭塗料」で塗装。炭塗料は調湿効果とマイナスイオンを発生させる効果があります。


before
施工前の和室は特に使われていないような状態で部分で害虫の被害も出ておりました。トイレも古い和式トイレでした。

After
以前の和室をすべて解体して、浴室、トイレ、洗面室、納戸、中廊下を新設。ユニットバスはINAXの新商品「ラ・バス」を設置。色も新色を採用してスタイリッシュなデザインですね。洗面室はスペースを広く取って使いやすく。以前の原型はありません。






before
北側の水廻りは釜を利用している浴室と土間の納戸がありました。お風呂は薪風呂です。薪で沸かすお湯は柔らかいと現在でも人気がありますが今回は思い切ってリフォームします。

After
外観も一新され、すっきりとしました。外壁は和風サイディングを貼りつけて、雰囲気を生かしています。サッシ類もすべてペアガラスに変えて断熱効果を高めます。地球にやさしいエコリフォームですね。



before

After

before

After
玄関ホールは無垢のフローリング「ナラ材」を使用。玄関框は硬く頑丈な「けやき」を使用しました。

before

After

before

After

before


After
広縁にも無垢ごろ寝フローリング「ナラ材」を使用。陽のあたる所のため紫外線にも強いUV塗装品を採用しました。